CAT opportunity: Auckland Hall

From the section: Community Asset Transfer (CAT)

Guide Navigation

Skip Guide Navigation

In this section:

CAT opportunity: Auckland Hall

Outdoor view of Auckland Hall

We’re inviting expressions of interest (EOI) from established community organisations to take on the management and operation of Auckland Hall, a valued community venue.

About the opportunity

Address: 
Auckland Hall
25 Sunbeam Close
B36 9JR 

The venue is currently used by several community groups including Cars Area Together.

It is currently managed by Solihull Community Housing which manages the housing service on behalf of Solihull Council. 

This opportunity also includes 1.76 acres of open space. The CAT Plan of Auckland Hall shows the red line boundary of both assets plus a right of access highlighted in brown.

About Auckland Hall

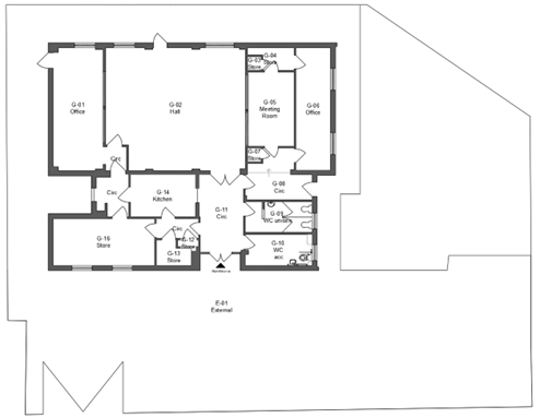
Floor plan of Auckland Hall, Solihull

The building occupies approximately 196 square metres and is fully self-contained within a secure gated compound, which includes a modest outdoor area. 

The indoors is made up of:

  • a main hall
  • two smaller meeting rooms
  • office space
  • a kitchen
  • toilet facilities 

The image to the right shows a floor plan of the building.

In early 2025, the building was refurbished, costing approximately £100,000. Building improvements included:

  • installation of a new kitchen
  • replacement flooring
  • redecoration of indoors
  • a new roof and insulation
  • new boilers

Lease terms 

The lease is between three and 20 years, subject to negotiation and performance.

A shorter lease (e.g. three years) may be considered for organisations undergoing leadership or structural change.

A peppercorn (low or nominal) or reduced rent may be offered, subject to the social value demonstrated. 

The access road (highlighted in brown on the plan) to the open space is subject to the successful CAT applicant paying a 50% repair contribution cost when repairs are required.

Who can apply?

We welcome EOIs from:

  • registered charities
  • Community Interest Companies (CICs)
  • Charitable Incorporated Organisations (CIOs)
  • not-for-profit voluntary or community groups
  • faith-based organisations providing inclusive services 

Important dates

The deadline for EOIs is 11:59pm on 10 December 2025.

Shortlisted organisations will be informed week commencing 15 December 2025 and will be required to submit a business plan by 11:59pm on 11 January 2026. 

A decision will be made after business case evaluation has been completed. Lease negotiation will also take place at this time.

Submit Expression of Interest

Transparency and fairness

We are committed to a transparent and competitive process. This opportunity is open to any organisation that can demonstrate it can successfully manage the building and accompanying land for the benefit of the local community.